До головного контенту
  1. Головна
  2. Документи
  3. Рішення міської ради
Чинний
Рішення міської ради від 27.07.2016 №11/79 м. Луцьк

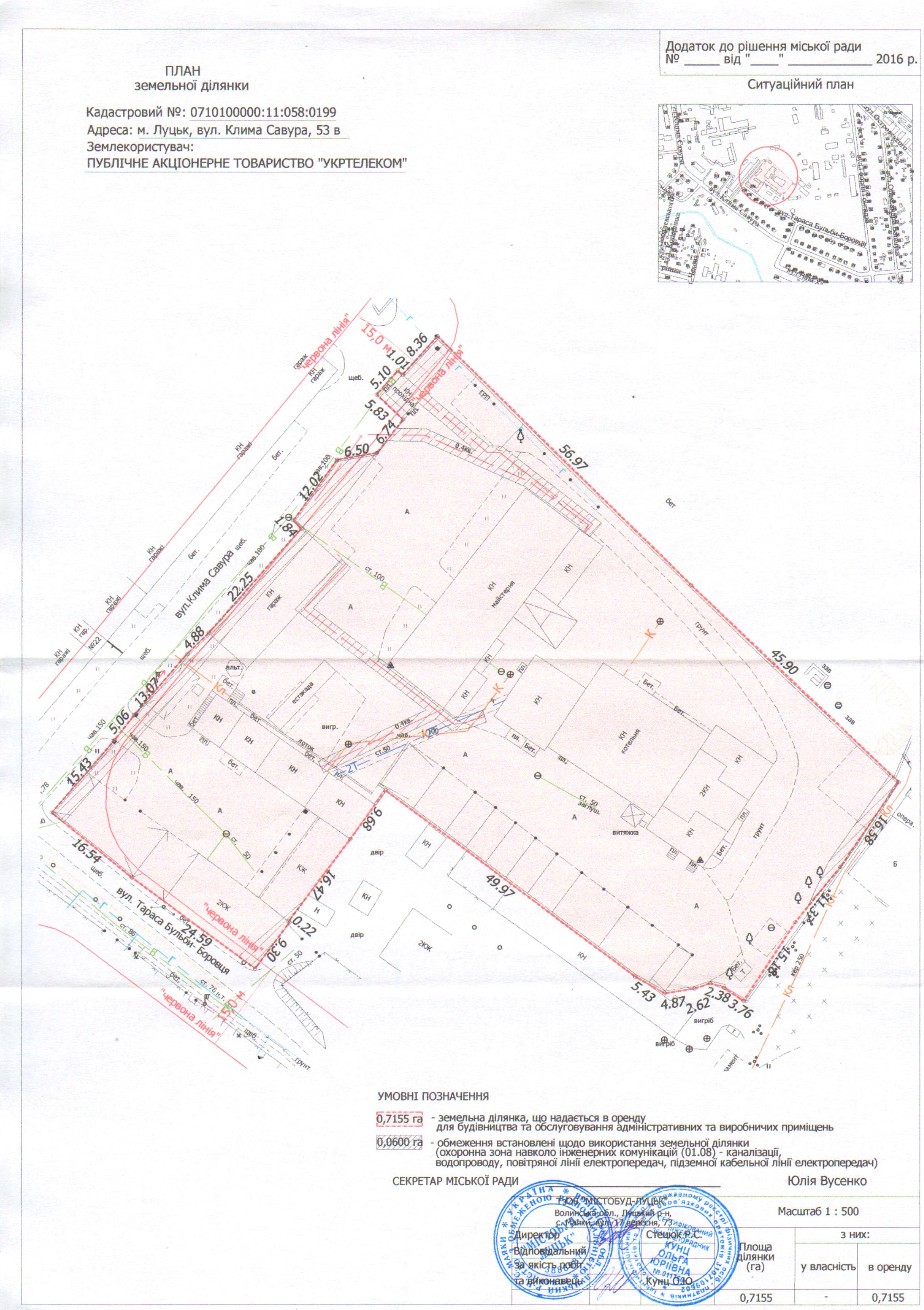
Про надання ПАТ «УКРТЕЛЕКОМ» на умовах оренди земельної ділянки для будівництва та обслуговування адміністративних та виробничих приміщень на вул. Клима Савура, 53в (площею 0,7155 га)

Розглянувши клопотання ПУБЛІЧНОГО АКЦІОНЕРНОГО ТОВАРИСТВА «УКРТЕЛЕКОМ» щодо надання на умовах оренди земельної ділянки на вул. Клима Савура, 53в для будівництва та обслуговування адміністративних та виробничих приміщень, матеріали проекту землеустрою щодо відведення земельної ділянки ПУБЛІЧНОМУ АКЦІОНЕРНОМУ ТОВАРИСТВУ «УКРТЕЛЕКОМ», витяг з Державного земельного кадастру про земельну ділянку від 18.05.2016 № НВ-0702103812016, витяг з протоколу № 11 засідання постійної комісії з питань земельних відносин та земельного кадастру від 13.04.2016, керуючись статтями 12, 93, 96, 123-126, 186, 186-1 Земельного кодексу України, Законом України «Про оренду землі», Законом України «Про землеустрій», Законом України «Про Державний земельний кадастр», Законом України «Про внесення змін до деяких законодавчих актів України щодо розмежування земель державної та комунальної власності», ст. 26 Закону України «Про місцеве самоврядування в Україні», Законом України «Про державну реєстрацію речових прав на нерухоме майно та їх обтяжень», Постановою Кабінету Міністрів України від 17.10.2012 № 1051 «Про затвердження Порядку ведення Державного земельного кадастру», міська рада

 

ВИРІШИЛА:

 

1. Затвердити ПУБЛІЧНОМУ АКЦІОНЕРНОМУ ТОВАРИСТВУ «УКРТЕЛЕКОМ» проект землеустрою щодо відведення земельної ділянки на вул. Клима Савура, 53в площею 0,7155 га, кадастровим номером 0710100000:11:058:0199, для будівництва та обслуговування адміністративних та виробничих приміщень.

2. Надати ПУБЛІЧНОМУ АКЦІОНЕРНОМУ ТОВАРИСТВУ «УКРТЕЛЕКОМ» земельну ділянку на вул. Клима Савура, 53в на умовах оренди строком на 10 років, площею 0,7155 га, кадастровим номером 0710100000:11:058:0199, для будівництва та обслуговування адміністративних та виробничих приміщень, згідно з додатком.

3. Укласти з ПУБЛІЧНИМ АКЦІОНЕРНИМ ТОВАРИСТВОМ «УКРТЕЛЕКОМ» договір оренди земельної ділянки на вул. Клима Савура, 53в  на вказаних в даному рішенні умовах, а також оформити інші документи, необхідні для вчинення цієї угоди.

4. Зобов’язати ПУБЛІЧНЕ АКЦІОНЕРНЕ ТОВАРИСТВО «УКРТЕЛЕКОМ»:

4.1.  Укласти з міською радою договір оренди землі.

4.2.  Зареєструвати право оренди земельної ділянки в порядку, визначеному чинним законодавством України.

4.3. Виконувати обов’язки землекористувача відповідно до вимог ст. 96 Земельного кодексу України.

4.4. Забезпечувати збереження та вільний доступ до мереж міських інженерних комунікацій, що проходять по зазначеній території, для проведення ремонтних та профілактичних робіт.

5. У разі, якщо одна із сторін не підписала договір оренди землі впродовж шести календарних місяців з моменту прийняття даного рішення, пункти 2-4 рішення втрачають чинність.

6. Контроль за виконанням даного рішення покласти на постійну комісію міської ради з питань земельних відносин та земельного кадастру (Ткачук Є.Є.).

 

 

Міський голова                                                                                Микола Романюк

Додатки: