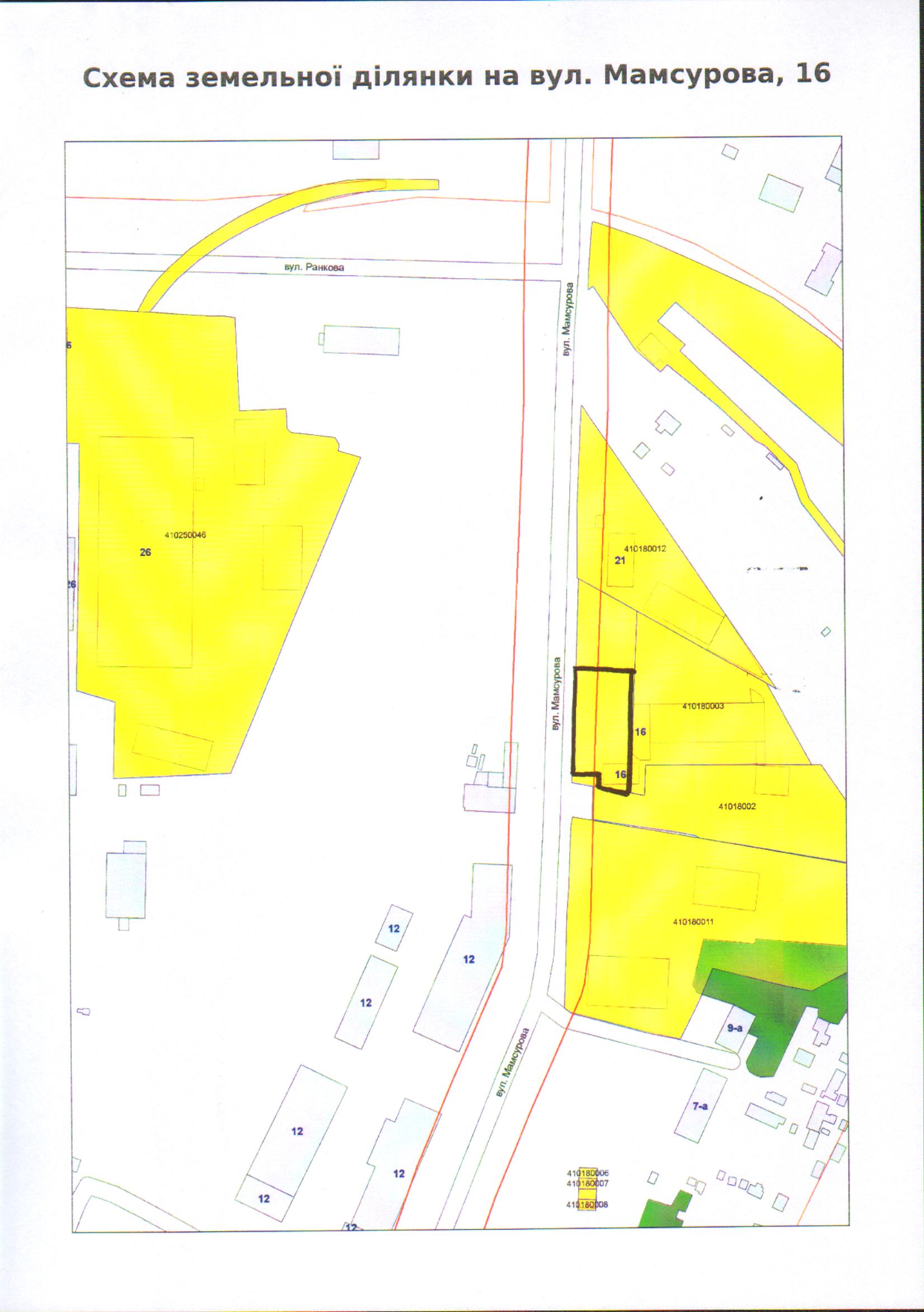
Про надання громадянину Скибі О.І. дозволу на розроблення технічної документації із землеустрою щодо встановлення (відновлення) меж земельної ділянки в натурі (на місцевості) на вул. Мамсурова, 16 (площею 0,1505 га)
Розглянувши клопотання громадянина Скиби Олексія Ігоровича про надання дозволу на розроблення технічної документації із землеустрою щодо встановлення (відновлення) меж земельної ділянки в натурі (на місцевості) на вул. Мамсурова, 16, у зв’язку із переходом права власності на об’єкти нерухомого майна на вул. Мамсурова, 16 від громадянки Никончук Світлани Петрівни до громадянина Скиби Олексія Ігоровича: договір купівлі-продажу нерухомого майна від 16.12.2016 № 948, відповідно до якого право власності на приміщення овочесховища з адміністративно-побутовими будівлями та приміщеннями зареєстроване в Державному реєстрі речових прав на нерухоме майно від 16.12.2016, номер запису про право власності: 18167466, технічний паспорт на об’єкт нерухомого майна від 27.12.2016; договір купівлі-продажу земельної ділянки від 16.12.2016 № 949, відповідно до якого право власності на земельну ділянку площею 0,4056 га зареєстроване в Державному реєстрі речових прав на нерухоме майно від 16.12.2016, номер запису про право власності: 18169769, враховуючи договір оренди землі, укладений між Луцькою міською радою та фізичною особою-підприємцем Никончук Світланою Петрівною від 12.04.2016 (право оренди земельної ділянки зареєстроване у Державному реєстрі речових прав на нерухоме майно від 20.04.2016, номер запису про інше речове право: 14323166), строк дії якого закінчився, акт приймання-передачі земельної ділянки, відповідно до якого зареєстроване припинення права оренди у Державному реєстрі речових прав на нерухоме майно від 20.02.2017, керуючись статтями 12, 79-1, 93, 120, 122-123 Земельного кодексу України, статтею 7 Закону України «Про оренду землі», Законом України «Про внесення змін до деяких законодавчих актів України щодо розмежування земель державної та комунальної власності», статтею 55 Закону України «Про землеустрій», статтею 26 Закону України «Про місцеве самоврядування в Україні», пунктом 107 Постанови Кабінету Міністрів України від 17.10.2012 № 1051 «Про затвердження Порядку ведення Державного земельного кадастру», міська рада
ВИРІШИЛА:
1. Надати громадянину Скибі Олексію Ігоровичу дозвіл на розроблення технічної документації із землеустрою щодо встановлення (відновлення) меж земельної ділянки в натурі (на місцевості) на вул. Мамсурова, 16, площею  0,1505 га, кадастровим номером 0710100000:41:018:0013.
2. Зобов’язати громадянина Скибу Олексія Ігоровича розробити технічну документацію із землеустрою щодо встановлення (відновлення) меж земельної ділянки в натурі (на місцевості) та подати її на затвердження до міської ради.
3. У разі зміни межі або цільового призначення земельної ділянки дане рішення втрачає чинність, а земельна ділянка підлягає відведенню за проектом землеустрою.
4. Контроль за виконанням даного рішення покласти на постійну комісію міської ради з питань земельних відносин та земельного кадастру (Ткачук Є.Є.).
Секретар міської ради                                                               Григорій Пустовіт
 
