До головного контенту
  1. Головна
  2. Документи
  3. Рішення міської ради
Чинний
Рішення міської ради від 01.12.2016 №15/130 м. Луцьк

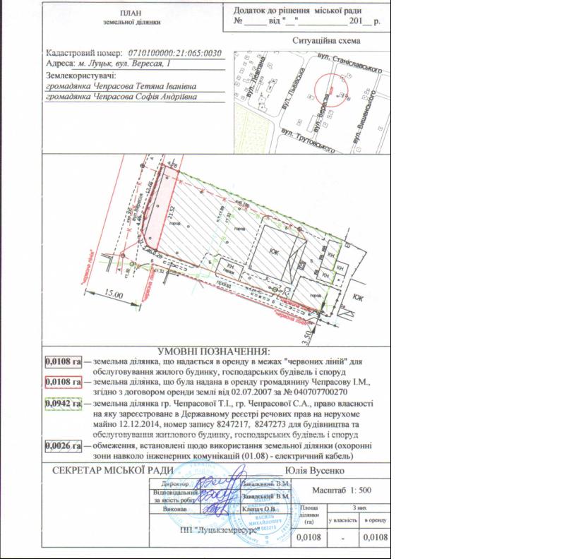
Про надання громадянам Чепрасовій Т.І., Чепрасовій С.А. на умовах оренди земельної ділянки в межах «червоних ліній» для обслуговування жилого будинку, господарських будівель і споруд на вул. Вересая, 1 (площею 0,0108 га)

Розглянувши клопотання громадян Чепрасової Тетяни Іванівни, Чепрасової Софії Андріївни щодо надання на умовах оренди земельної ділянки на вул. Вересая, 1 в межах «червоних ліній» для обслуговування жилого будинку, господарських будівель і споруд, матеріали технічної документації із землеустрою щодо встановлення (відновлення) меж земельної ділянки в натурі (на місцевості) громадянам Чепрасовій Тетяні Іванівні, Чепрасовій Софії Андріївні, витяг з Державного земельного кадастру про земельну ділянку від 26.10.2016 № НВ-0702427062016, керуючись статтями 12, 79-1, 93, 120, 123-126, 186 Земельного кодексу України, статтею 55 Закону України «Про землеустрій», статтями 4-7, 16, 19 Закону України «Про оренду землі», статтями 21, 22, 24 Закону України «Про Державний земельний кадастр», Законом України «Про державну реєстрацію речових прав  на нерухоме майно та їх обтяжень», Законом України «Про внесення змін до деяких законодавчих актів України щодо розмежування земель державної та комунальної власності», ст. 26 Закону України “Про місцеве самоврядування в Україні”, пунктами 75, 107, 110-111 Постанови Кабінету Міністрів України від 17.10.2012 № 1051 «Про затвердження Порядку ведення Державного земельного кадастру», міська рада

 

ВИРІШИЛА:

 

1. Затвердити громадянам Чепрасовій Тетяні Іванівні, Чепрасовій Софії Андріївні технічну документацію із землеустрою щодо встановлення (відновлення) меж земельної ділянки в натурі (на місцевості) на вул. Вересая, 1, площею 0,0108 га, кадастровим номером 0710100000:21:065:0030, в межах «червоних ліній» для обслуговування жилого будинку, господарських будівель і споруд.

2. Надати громадянам Чепрасовій Тетяні Іванівні, Чепрасовій Софії Андріївні земельну ділянку на вул. Вересая, 1, на умовах оренди строком на 25 років, площею 0,0108 га, кадастровим номером 0710100000:21:065:0030, в межах «червоних ліній» для обслуговування жилого будинку, господарських будівель і споруд, з земель комунальної власності, згідно з додатком.

3. Укласти з громадянами Чепрасовою Тетяною Іванівною, Чепрасовою Софією Андріївною договір оренди земельної ділянки на вул. Вересая, 1 на вказаних в даному рішенні умовах, а також оформити інші документи, необхідні для вчинення цієї угоди.

4. Зобов’язати громадян Чепрасову Тетяну Іванівну, Чепрасову Софію Андріївну:

4.1. Укласти з міською радою договір оренди землі.

4.2. Зареєструвати право оренди земельної ділянки в порядку, визначеному чинним законодавством України.

4.3. Виконувати обов’язки землекористувача відповідно до вимог ст. 96 Земельного кодексу України.

4.4. Забезпечувати збереження та вільний доступ до мереж міських інженерних комунікацій, що проходять по зазначеній території, для проведення ремонтних та профілактичних робіт.

5. У разі, якщо одна із сторін не підписала договір оренди землі впродовж шести календарних місяців з моменту прийняття даного рішення, пункти 1-4 рішення втрачають чинність.

6. Контроль за виконанням даного рішення покласти на постійну комісію міської ради з питань земельних відносин та земельного кадастру (Ткачук Є.Є.).

 

 

Міський голова                                                                                Микола Романюк

Додатки: