До головного контенту
  1. Головна
  2. Документи
  3. Рішення міської ради
Втратив чинність
Рішення міської ради від 06.06.2012 №25/106 м. Луцьк

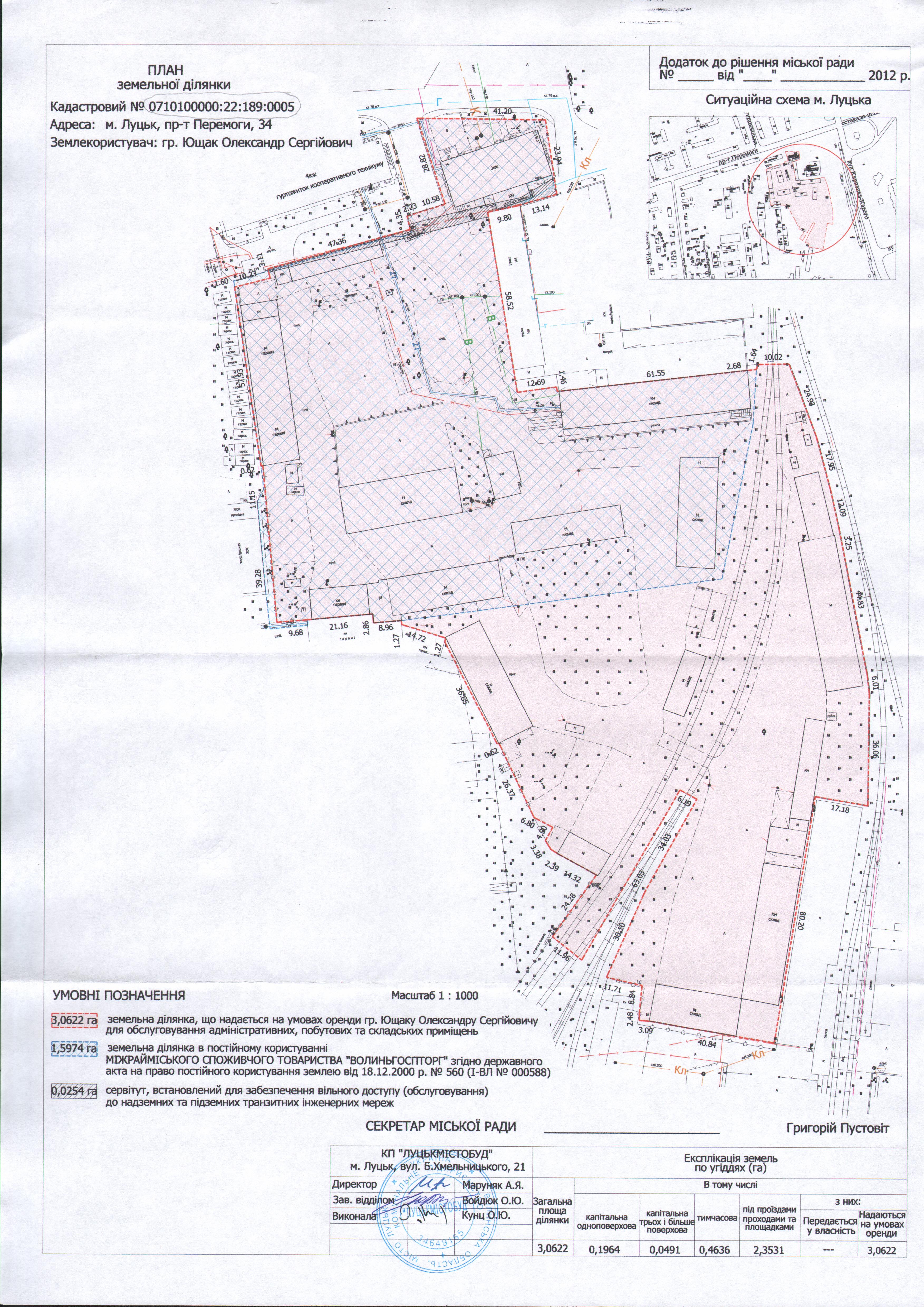
Про надання громадянину Ющаку О.С. на умовах оренди земельної ділянки для обслуговування адміністративних, побутових та складських приміщень на умовах оренди земельної ділянки для

Розглянувши клопотання громадянина Ющака Олександра Сергійовича щодо надання на умовах оренди земельної ділянки на пр-ті Перемоги, 34 для обслуговування адміністративних, побутових та складських приміщень, клопотання Міжрайміського споживчого товариства «Волиньгоспторг»  щодо припинення права постійного користування земельною ділянкою (державний акт на право постійного користування землею зареєстрований в Книзі записів державних актів на право постійного користування землею за № 560 від 18.12.2000), у зв’язку із переходом права власності на нерухоме майно, що знаходиться на вищевказаній земельній ділянці до громадянина Ющака Олександра Сергійовича, матеріали проекту землеустрою щодо відведення земельної ділянки громадянину Ющаку Олександру Сергійовичу, керуючись статтями 12, 93, 96, 123-126, 141, 186 Земельного кодексу України, ст. 26 Закону України “Про місцеве самоврядування в Україні”, міська рада

ВИРІШИЛА:

1. Припинити Міжрайміському споживчому товариству «Волиньгоспторг» право постійного користування земельною ділянкою на           пр-ті Перемоги, 34, площею 1,5974 га, у зв’язку із добровільною відмовою.

2. Затвердити громадянину Ющаку Олександру Сергійовичу проект землеустрою щодо відведення земельної ділянки на пр-ті Перемоги, 34 площею 3,0622 га для обслуговування адміністративних, побутових та складських приміщень.

3. Надати громадянину Ющаку Олександру Сергійовичу на умовах оренди строком на 5 років земельну ділянку на пр-ті Перемоги, 34  площею 3,0622 га для обслуговування адміністративних, побутових та складських приміщень, за рахунок земель Міжрайміського споживчого товариства «Волиньгоспторг», наданих в постійне користування (площею 1,5974 га) та земель міста, не наданих у власність чи користування (площею 1,4648 га), згідно з додатком.

4. Укласти з громадянином Ющаком Олександром Сергійовичем договір оренди земельної ділянки на пр-ті Перемоги, 34, на вказаних в даному рішенні  умовах, а також оформити інші документи, необхідні для вчинення цієї угоди.

5. Зобов’язати громадянина Ющака Олександра Сергійовича:  

5.1. В місячний термін укласти з міською радою договір оренди землі.

5.2. Зареєструвати договір оренди землі та право оренди земельної ділянки в управлінні Держкомзему у м. Луцьку Волинської області.

5.3.   Виконувати обов’язки землекористувача відповідно до вимог ст. 96 Земельного кодексу України.

5.4. Забезпечувати збереження та вільний доступ до мереж міських інженерних комунікацій, що проходять по зазначеній території, для проведення ремонтних та профілактичних робіт.

6. У разі неукладення договору оренди землі впродовж шести календарних місяців з моменту прийняття даного рішення, воно втрачає чинність.

7. Контроль за виконанням даного рішення покласти на постійну комісію міської ради з питань земельних відносин та земельного кадастру (Никитюк В.С.).

 

 

Міський голова                                                                                Микола Романюк

 

 

Додатки: