До головного контенту
  1. Головна
  2. Документи
  3. Рішення міської ради
Чинний
Рішення міської ради від 27.10.2016 №14/72 м. Луцьк

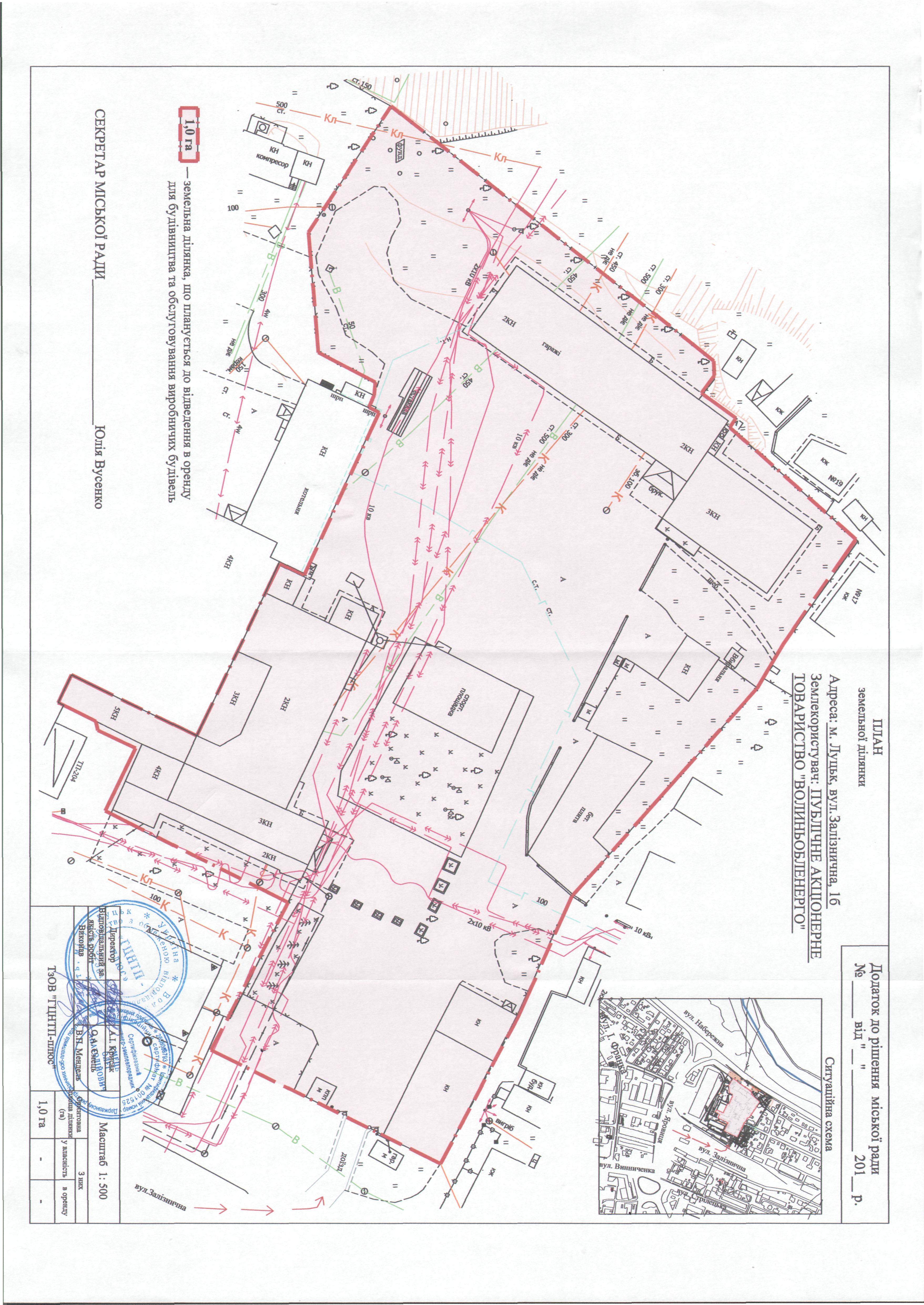
Про надання ПАТ «Волиньобленерго» дозволу на розроблення проекту землеустрою щодо відведення земельної ділянки для будівництва та

Розглянувши клопотання ПУБЛІЧНОГО АКЦІОНЕРНОГО ТОВАРИСТВА «ВОЛИНЬОБЛЕНЕРГО» про надання дозволу на розроблення проекту землеустрою щодо відведення земельної ділянки в оренду на вул. Залізничній, 1б для будівництва та обслуговування виробничих будівель, схему генплану земельної ділянки з прикладеним листом управління містобудування та архітектури Луцької міської ради щодо режиму забудови даної території, визначеної для містобудівних потреб, встановлених у генеральному плані міста Луцька, технічний паспорт на будівлю кузні, технічний паспорт на будівлю складу, технічний паспорт на будівлю виробничу № 1, технічний паспорт на будівлю виробничу № 2, довідки від 05.09.2016 № 14/87-3005, № 14/87-3006 ПУБЛІЧНОГО АКЦІОНЕРНОГО ТОВАРИСТВА «ВОЛИНЬОБЛЕНЕРГО» про перебування на балансі товариства будівель та споруд, рішення Луцької міської ради від 22.11.2002 № 3/7.15 «Про затвердження проекту відведення та надання відкритому акціонерному товариству «Волиньобленерго» земельних ділянок на умовах оренди», керуючись статтями 12, 79-1, 93, 123 Земельного кодексу України, статтею 6 Закону України «Про оренду землі», статтею 50 Закону України «Про землеустрій», Законом України «Про регулювання містобудівної діяльності», Законом України «Про внесення змін до деяких законодавчих актів України щодо розмежування земель державної та комунальної власності», статтею 26 Закону України «Про місцеве самоврядування в Україні», міська рада

 

ВИРІШИЛА:

 

1. Скасувати пункт 296 додатку до рішення Луцької міської ради від 22.11.2002 № 3/7.15 «Про затвердження проекту відведення та надання відкритому акціонерному товариству «Волиньобленерго» земельних ділянок на умовах оренди».

 2. Надати ПУБЛІЧНОМУ АКЦІОНЕРНОМУ ТОВАРИСТВУ «ВОЛИНЬОБЛЕНЕРГО» дозвіл на розроблення проекту землеустрою щодо відведення земельної ділянки на умовах оренди для будівництва та обслуговування виробничих будівель на вул. Залізничній, 1б орієнтовною площею 1,0 га, з земель комунальної власності, згідно з додатком.

Проект землеустрою щодо відведення земельної ділянки подати для розгляду та затвердження у встановленому порядку.

3. Контроль за виконанням даного рішення покласти на постійну комісію міської ради з питань земельних відносин та земельного кадастру  (Ткачук Є.Є.).

 

 

Секретар міської ради                                                 Юлія Вусенко