До головного контенту
  1. Головна
  2. Документи
  3. Рішення міської ради
Чинний
Рішення міської ради від 27.07.2016 №11/28 м. Луцьк

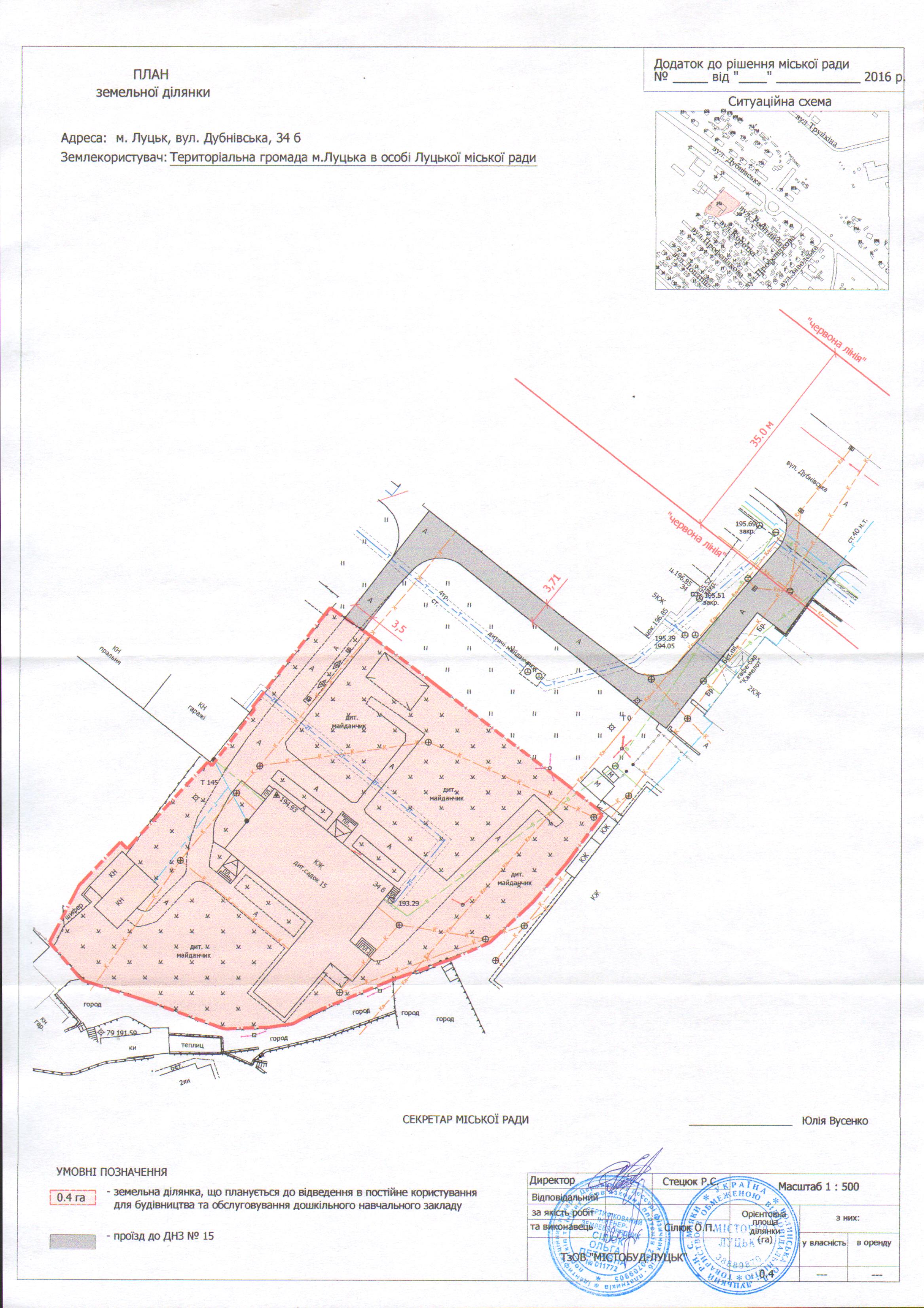
Про надання територіальній громаді міста Луцька в особі Луцької міської ради дозволу на розроблення проекту землеустрою щодо відведення земельної ділянки для будівництва та обслуговування дошкільного навчального закладу на вул. Дубнівській, 34б

Розглянувши клопотання Луцької міської ради про надання територіальній громаді міста Луцька в особі Луцької міської ради дозволу на розроблення проекту землеустрою щодо відведення земельної ділянки орієнтовною площею 0,4 га, для будівництва та обслуговування дошкільного навчального закладу на вул. Дубнівській, 34б, схему генплану земельної ділянки, лист управління містобудування та архітектури Луцької міської ради щодо режиму забудови даної території, визначеної для містобудівних потреб генеральним планом м. Луцька, технічний паспорт на об’єкт нерухомого майна, інформаційну довідку з Державного реєстру речових прав на нерухоме майно та Реєстру прав власності на нерухоме майно, Державного реєстру Іпотек, Єдиного реєстру заборон відчуження об’єктів нерухомого майна щодо об’єкта нерухомого майна, керуючись статтями 12, 92, 120, 123 Земельного кодексу України, п. 6 Прикінцевих та перехідних положень Закону України «Про внесення змін до деяких законодавчих актів України щодо розмежування земель державної та комунальної власності» та ст. 26 Закону України «Про місцеве самоврядування в Україні», міська рада  

 

ВИРІШИЛА:  

1. Надати територіальній громаді міста Луцька в особі Луцької міської ради дозвіл на розроблення проекту землеустрою щодо відведення земельної ділянки на вул. Дубнівській, 34б, орієнтовною площею 0,4 га, для будівництва та обслуговування дошкільного навчального закладу, згідно з додатком.

2. Територіальній громаді міста Луцька в особі Луцької міської ради подати на затвердження розроблений проект землеустрою щодо відведення земельної ділянки на вул. Дубнівській, 34б, орієнтовною площею 0,4 га, для будівництва та обслуговування дошкільного навчального закладу, в порядку, визначеному чинним законодавством України.

3. Контроль за виконанням даного рішення покласти на постійну комісію міської ради з питань земельних відносин та земельного кадастру (Ткачук Є.Є.).    

 

Міський голова                                                                            Микола Романюк