До головного контенту
  1. Головна
  2. Документи
  3. Рішення міської ради
Чинний
Рішення міської ради від 27.10.2016 №14/76 м. Луцьк

Про надання ТОВ «ГРІН РІЕЛТІ» на умовах оренди земельної ділянки для будівництва та обслуговування спортивно- оздоровчого комплексу та футбольного

Розглянувши клопотання ТОВАРИСТВА З ОБМЕЖЕНОЮ ВІДПОВІДАЛЬНІСТЮ «ГРІН РІЕЛТІ» щодо надання на умовах оренди земельної ділянки на вул. Мамсурова, 2а для будівництва та обслуговування спортивно-оздоровчого комплексу та футбольного поля, матеріали технічної документації із землеустрою щодо встановлення (відновлення) меж земельної ділянки в натурі (на місцевості) ТОВАРИСТВУ З ОБМЕЖЕНОЮ ВІДПОВІДАЛЬНІСТЮ «ГРІН РІЕЛТІ», витяг з Державного земельного кадастру про земельну ділянку від 04.10.2016 № НВ-0702362902016, керуючись статтями 12, 79-1, 93, 120, 123-124, 186 Земельного кодексу України, статтею 55 Закону України «Про землеустрій», статтями 4-7, 16, 19 Закону України «Про оренду землі», статтями 21, 22, 24 Закону України «Про Державний земельний кадастр», Законом України «Про державну реєстрацію речових прав  на нерухоме майно та їх обтяжень», Законом України «Про внесення змін до деяких законодавчих актів України щодо розмежування земель державної та комунальної власності», статтею 26 Закону України «Про місцеве самоврядування в Україні», пунктами 75, 107, 110-111 Постанови Кабінету Міністрів України від 17.10.2012 № 1051 «Про затвердження Порядку ведення Державного земельного кадастру», міська рада

 

ВИРІШИЛА:

 

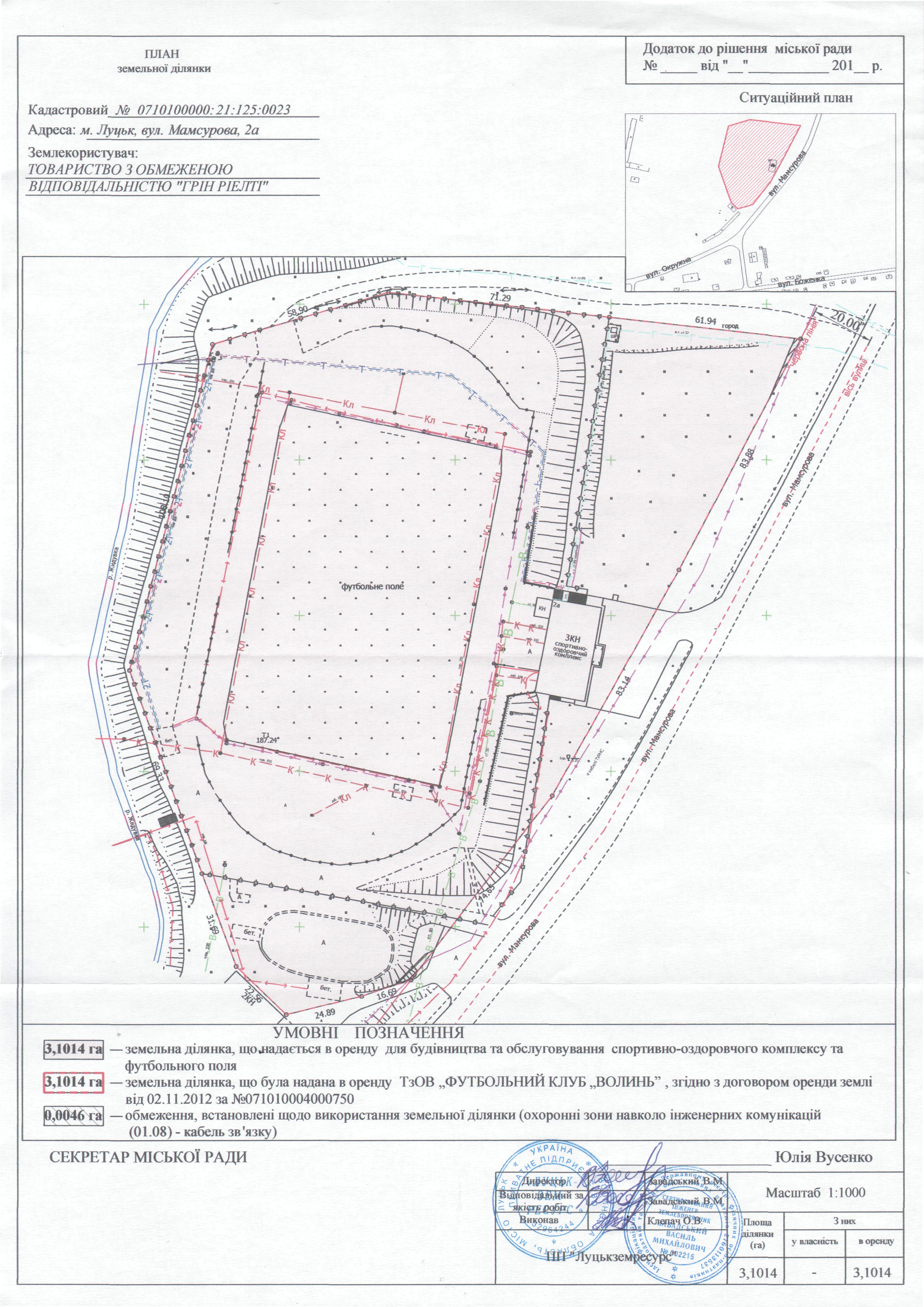
1. Затвердити ТОВАРИСТВУ З ОБМЕЖЕНОЮ ВІДПОВІДАЛЬНІСТЮ «ГРІН РІЕЛТІ» технічну документацію із землеустрою щодо встановлення (відновлення) меж земельної ділянки в натурі (на місцевості) на     вул. Мамсурова, 2а, площею 3,1014 га, кадастровим номером 0710100000:21:125:0023, для будівництва та обслуговування спортивно-оздоровчого комплексу та футбольного поля.

2. Надати ТОВАРИСТВУ З ОБМЕЖЕНОЮ ВІДПОВІДАЛЬНІСТЮ «ГРІН РІЕЛТІ» земельну ділянку на вул. Мамсурова, 2а, на умовах оренди строком на 10 років, площею 3,1014 га, кадастровим номером 0710100000:21:125:0023, для будівництва та обслуговування спортивно-оздоровчого комплексу та футбольного поля, згідно з додатком.

3. Укласти з ТОВАРИСТВОМ З ОБМЕЖЕНОЮ ВІДПОВІДАЛЬНІСТЮ «ГРІН РІЕЛТІ» договір оренди земельної ділянки на вул. Мамсурова, 2а на вказаних в даному рішенні умовах, а також оформити інші документи, необхідні для вчинення цієї угоди.

4. Зобов’язати ТОВАРИСТВО З ОБМЕЖЕНОЮ ВІДПОВІДАЛЬНІСТЮ «ГРІН РІЕЛТІ»:

4.1. Укласти з міською радою договір оренди землі.

4.2. Зареєструвати право оренди земельної ділянки в порядку, визначеному чинним законодавством України.

4.3. Виконувати обов’язки землекористувача відповідно до вимог ст. 96 Земельного кодексу України.

4.4. Забезпечувати збереження та вільний доступ до мереж міських інженерних комунікацій, що проходять по зазначеній території, для проведення ремонтних та профілактичних робіт.

4.5. Забезпечувати цілодобовий вільний доступ мешканців міста до бігових доріжок.

5. У разі, якщо одна із сторін не підписала договір оренди землі впродовж шести календарних місяців з моменту прийняття даного рішення, пункти 1-4 рішення втрачають чинність.

6. Контроль за виконанням даного рішення покласти на постійну комісію міської ради з питань земельних відносин та земельного кадастру (Ткачук Є.Є.).

 

 

Секретар міської ради                                                 Юлія Вусенко