До головного контенту
  1. Головна
  2. Документи
  3. Рішення міської ради
Чинний
Рішення міської ради від 07.09.2017 №30/49 м. Луцьк

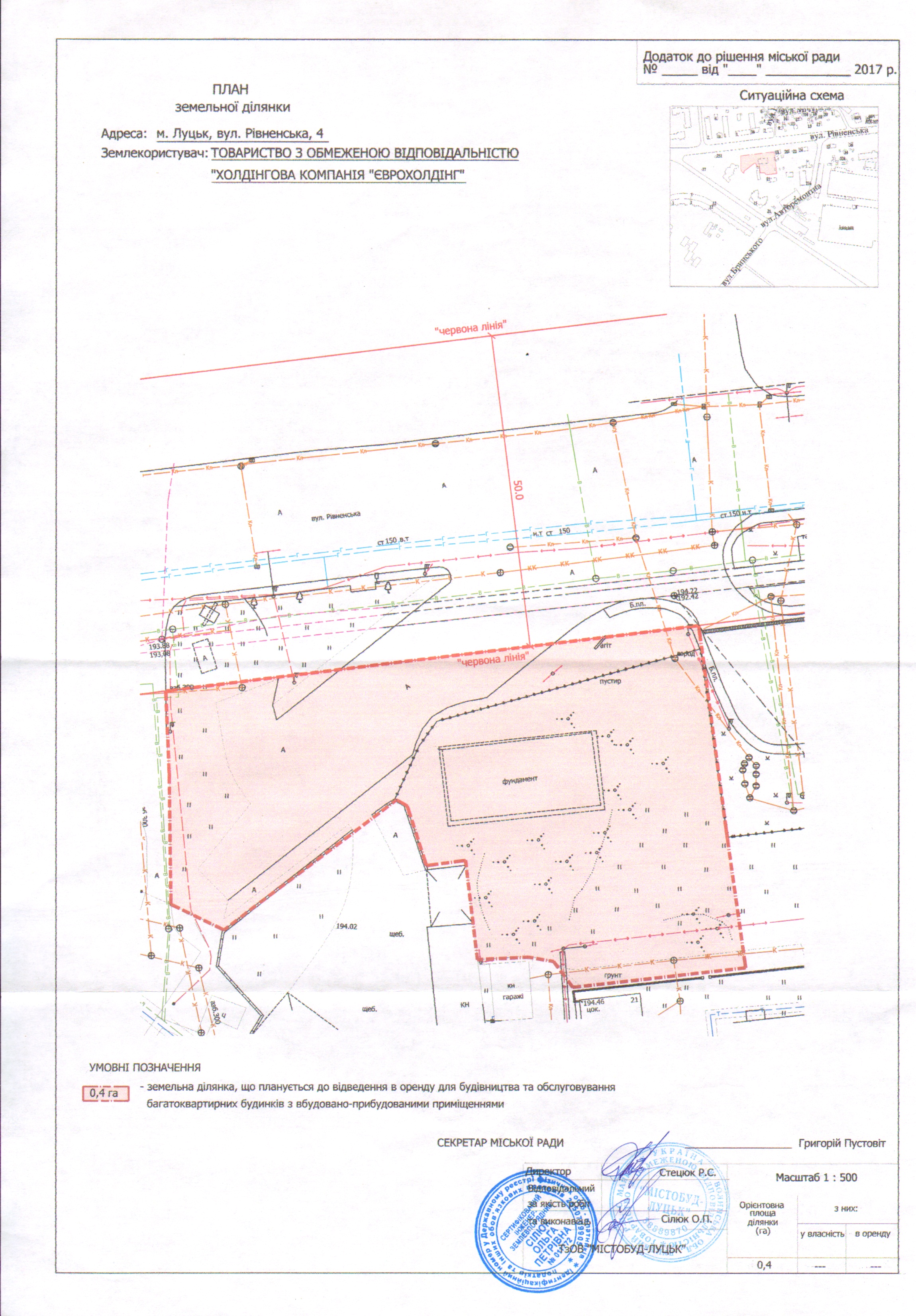
Про надання ТзОВ «ХК «ЄВРОХОЛДІНГ» дозволу на розроблення проекту землеустрою щодо відведення земельної ділянки для будівництва та обслуговування багатоквартирних будинків з вбудовано-прибудованими приміщеннями на вул. Рівненській, 4

Розглянувши клопотання ТОВАРИСТВА З ОБМЕЖЕНОЮ ВІДПОВІДАЛЬНІСТЮ «ХОЛДІНГОВА КОМПАНІЯ «ЄВРОХОЛДІНГ» про надання дозволу на розроблення проекту землеустрою щодо відведення земельної ділянки в оренду на вул. Рівненській, 4 для будівництва та обслуговування багатоквартирних будинків з вбудовано-прибудованими приміщеннями, схему генплану земельної ділянки з прикладеним листом управління містобудування та архітектури Луцької міської ради щодо режиму забудови даної території, визначеної для містобудівних потреб, встановлених у генеральному плані міста Луцька, правовстановлюючі документи ТОВАРИСТВА З ОБМЕЖЕНОЮ ВІДПОВІДАЛЬНІСТЮ «ХОЛДІНГОВА КОМПАНІЯ «ЄВРОХОЛДІНГ» на об'єкти нерухомого майна на вул. Рівненській, 4: договір купівлі продажу від 27.02.2017 № 192, відповідно до якого право власності на ½ частку незавершеного будівництвом 34-х квартирного будинку готовністю 3% зареєстровано у Державному реєстрі речових прав на нерухоме майно 27.02.2017, номер запису про право власності 19212222; договір купівлі продажу від 27.02.2017 № 194, відповідно до якого право власності на ½ частку незавершеного будівництва 34-х квартирного будинку готовністю 3% зареєстровано у Державному реєстрі речових прав на нерухоме майно 27.02.2017, номер запису про право власності 19213150, керуючись статтями 12, 79-1, 93, 123, п. 2 ст. 134 Земельного кодексу України, статтею 6 Закону України «Про оренду землі», статтею 50 Закону України «Про землеустрій», Законом України «Про регулювання містобудівної діяльності», Законом України «Про внесення змін до деяких законодавчих актів України щодо розмежування земель державної та комунальної власності», статтею 26 Закону України «Про місцеве самоврядування в Україні», міська рада

 

ВИРІШИЛА:

 

1. Надати ТОВАРИСТВУ З ОБМЕЖЕНОЮ ВІДПОВІДАЛЬНІСТЮ «ХОЛДІНГОВА КОМПАНІЯ «ЄВРОХОЛДІНГ» дозвіл на розроблення проекту землеустрою щодо відведення земельної ділянки на умовах оренди для будівництва та обслуговування багатоквартирних будинків з вбудовано-прибудованими приміщеннями  на вул. Рівненській, 4, орієнтовною площею 0,4 га, з земель комунальної власності, згідно з додатком.

Проект землеустрою щодо відведення земельної ділянки подати для розгляду та затвердження у встановленому порядку.

2. Контроль за виконанням даного рішення покласти на постійну комісію міської ради з питань земельних відносин та земельного кадастру (Ткачук Є.Є.).

 

 

Секретар міської ради                                                               Григорій Пустовіт