До головного контенту
  1. Головна
  2. Документи
  3. Рішення міської ради
Чинний
Рішення міської ради від 30.05.2012 №25/23 м. Луцьк

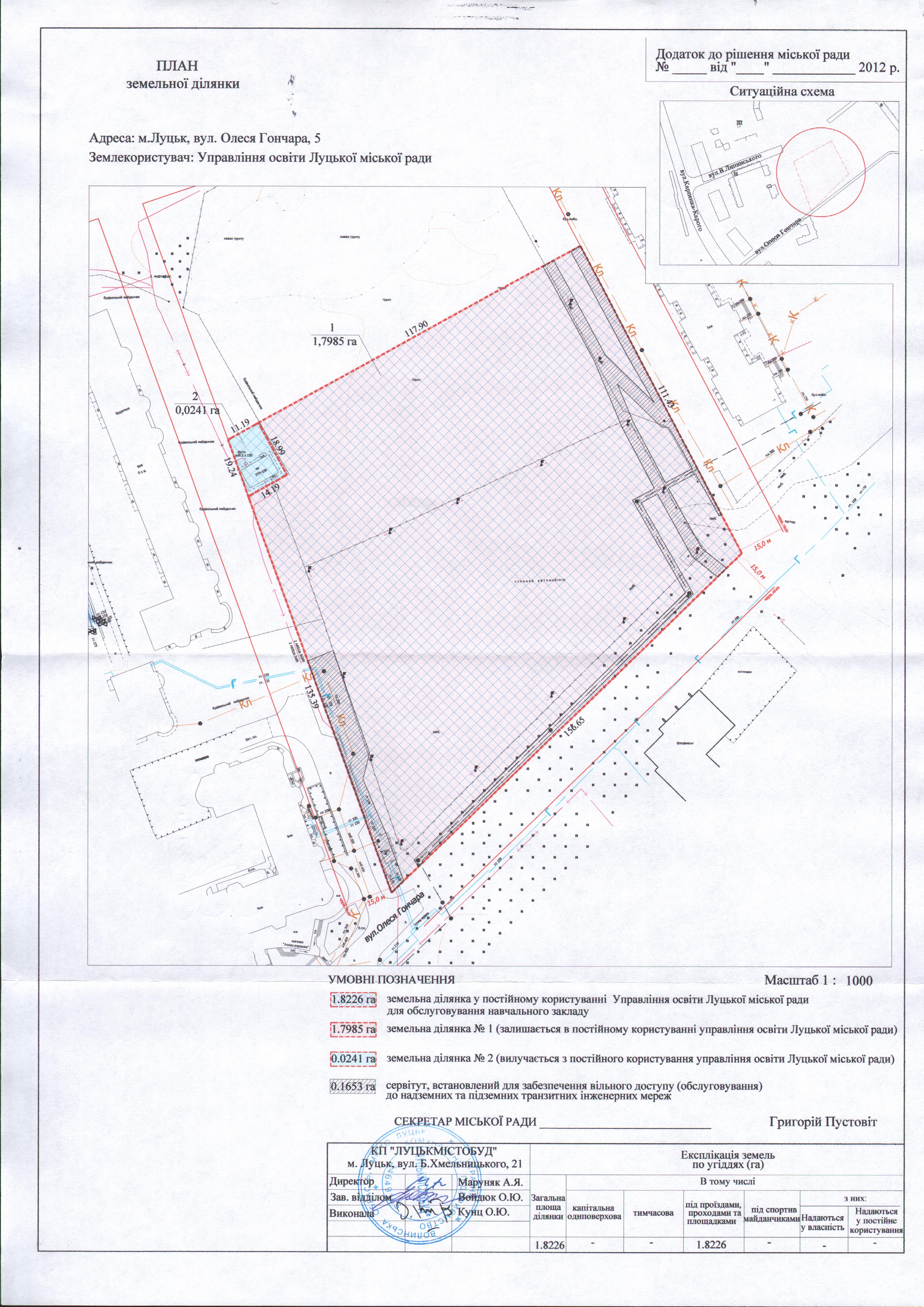
Про надання згоди управлінню освіти Луцької міської ради на розроблення технічної документації із землеустрою щодо складання документів, що посвідчують право постійного користування при поділі земельної ділянки на вул. Олеся Гончара, 5

Розглянувши клопотання управління освіти Луцької міської ради про надання дозволу на поділ земельної ділянки на вул. Олеся Гончара, 5 площею 1,8226 га, кадастровим номером 0710100000:22:074:0067, яка перебуває в  користуванні управління згідно державного акту на право постійного користування земельною ділянкою від 01.08.2011 серії ЯЯ № 032048, у зв’язку з будівництвом на частині вищезазначеної земельної ділянки трансформаторної підстанції, яка буде передаватись Головним управлінням містобудування, архітектури та житлово-комунального господарства Волинської обласної державної адміністрації на баланс ПАТ «Волиньобленерго», та необхідності в подальшому оформлення в користування вищезазначеним товариством земельної ділянки під трансформаторною підстанцією, керуючись ст.ст. 12, 92, 123, 186 Земельного кодексу України, ст. 56 Закону України «Про землеустрій», ст. 26 Закону України «Про місцеве самоврядування в Україні», міська рада

В И Р І Ш И Л А:

1. Надати згоду управлінню освіти Луцької міської ради на розроблення технічної документації із землеустрою щодо складання документів, що посвідчують право постійного користування при поділі  земельної ділянки на вул. Олеся Гончара, 5 площею 1,8226 га, кадастровим номером 0710100000:22:074:0067, цільовим призначенням для обслуговування навчального закладу, на дві земельні ділянки, згідно з додатком, а саме:

1.1. Земельну ділянку площею 1,7985 га, яка залишається в постійному користуванні управління освіти Луцької міської ради;

1.2. Земельну ділянку площею 0,0241 га, яка вилучається з постійного користування управління освіти Луцької міської ради.

2. Управлінню освіти Луцької міської ради подати розроблену технічну документацію із землеустрою щодо складання документів, що посвідчують право постійного користування, при поділі земельної ділянки на вул. Олеся Гончара, 5, для розгляду у встановленому порядку.

3. Контроль  за  виконанням  даного рішення  покласти  на  постійну комісію міської ради з питань земельних відносин та земельного кадастру (Никитюк В.С.).

 

 

Міський голова                                                                                 Микола Романюк

Додатки: