До головного контенту
  1. Головна
  2. Документи
  3. Рішення міської ради
Чинний
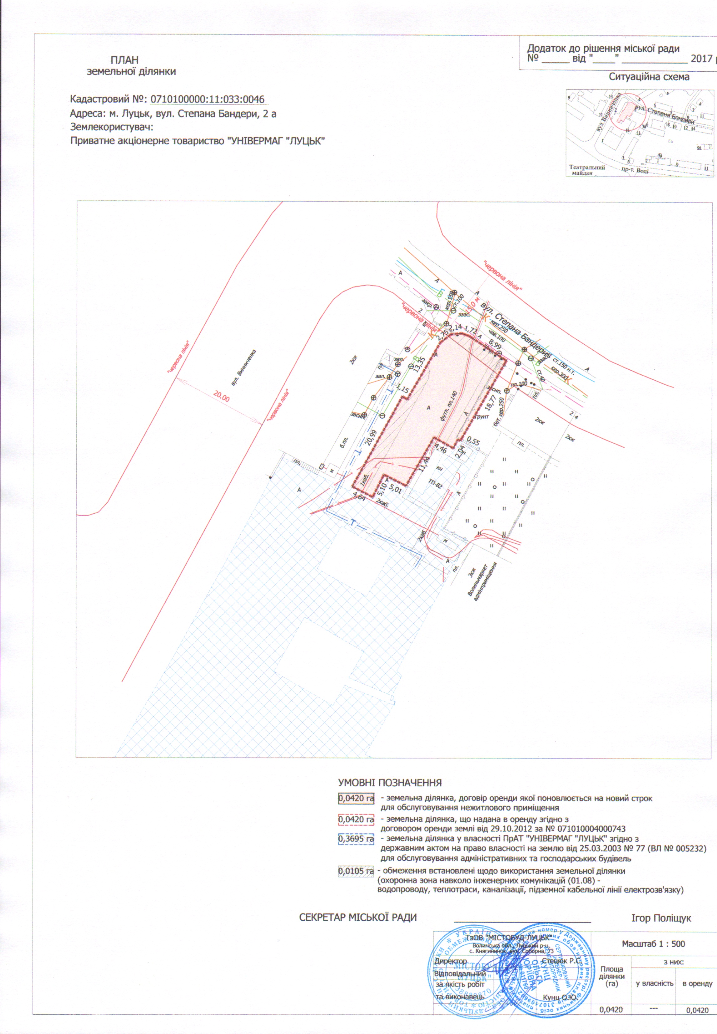
Рішення міської ради від 31.05.2017 №24/61 м. Луцьк

Про поновлення договору оренди землі ПрАТ «УНІВЕРМАГ «ЛУЦЬК» для обслуговування нежитлового приміщення на вул. Степана Бандери, 2а

Розглянувши клопотання Приватного акціонерного товариства «УНІВЕРМАГ «ЛУЦЬК» щодо поновлення договору оренди землі, зареєстрованого у Державному реєстрі земель від 29.10.2012 за № 071010004000743, враховуючи правовстановлюючі документи Приватного акціонерного товариства «УНІВЕРМАГ «ЛУЦЬК» на об'єкти нерухомого майна: свідоцтво про право власності від 24.10.2012, відповідно до якого право власності на будівлю універмагу зареєстроване 19.12.2012, реєстраційний номер майна 38067052, технічний паспорт на об’єкт нерухомого майна від 09.10.2012; свідоцтво про право власності від 24.10.2012, відповідно до якого право власності на трансформаторну підстанцію зареєстроване 26.10.2012, реєстраційний номер майна 38004134, технічний паспорт на об’єкт нерухомого майна від 13.09.2012; державний акт на право власності на земельну ділянку площею 0,3695 га, зареєстрований в книзі записів державної реєстрації державних актів на право власності на землю за № 77 від 25.03.2003 (серія ВЛ № 005232), керуючись статтями 12, 93, 96 Земельного кодексу України, статтею 33 Закону України «Про оренду землі», Законом України «Про Державний земельний кадастр», Законом України «Про державну реєстрацію речових прав на нерухоме майно та їх обтяжень», Законом України «Про внесення змін до деяких законодавчих актів України щодо розмежування земель державної та комунальної власності», статтею 26 Закону України «Про місцеве самоврядування в Україні», пунктами 162, 171 Постанови Кабінету Міністрів України від 17.10.2012 № 1051 «Про затвердження Порядку ведення Державного земельного кадастру», пунктами 8, 30 договору оренди землі, міська рада

 

ВИРІШИЛА:

 

1. Продовжити Приватному акціонерному товариству «УНІВЕРМАГ «ЛУЦЬК» термін оренди земельної ділянки на вул. Степана Бандери, 2а строком на 10 років з дати закінчення договору оренди землі (до 10.04.2027), площею 0,0420 га, кадастровим номером 0710100000:11:033:0046, для обслуговування нежитлового приміщення, згідно з додатком.

2. Поновити Приватному акціонерному товариству «УНІВЕРМАГ «ЛУЦЬК» договір оренди землі, зареєстрований у Державному реєстрі земель від 29.10.2012 за № 071010004000743, шляхом укладення додаткової угоди про поновлення договору оренди землі, на вказаних в даному рішенні умовах, а також оформити інші документи, необхідні для вчинення цієї угоди.

3. Зобов’язати Приватне акціонерне товариство «УНІВЕРМАГ «ЛУЦЬК»:

3.1. Укласти з міською радою додаткову угоду про поновлення договору оренди землі.

3.2. Зареєструвати право оренди земельної ділянки в порядку, визначеному чинним законодавством України.

3.3. Виконувати обов’язки землекористувача відповідно до вимог ст. 96 Земельного кодексу України.

3.4. Забезпечувати збереження та вільний доступ до мереж міських інженерних комунікацій, що проходять по зазначеній території, для проведення ремонтних та профілактичних робіт.

4. У разі, якщо одна із сторін не підписала додаткову угоду про поновлення договору оренди землі впродовж шести календарних місяців з моменту прийняття даного рішення, пункти 1-3 рішення втрачають чинність, а договір оренди землі вважається припиненим у зв’язку з закінченням строку, на який його було укладено.

5. Контроль за виконанням даного рішення покласти на постійну комісію міської ради з питань земельних відносин та земельного кадастру (Ткачук Є.Є.).

 

 

Секретар міської ради                                                          Ігор Поліщук