До головного контенту
  1. Головна
  2. Документи
  3. Рішення міської ради
Чинний
Рішення міської ради від 27.10.2016 №14/73 м. Луцьк

Про відмову фізичній особі-підприємцю Михальчук О.М. в наданні дозволу на розроблення проекту землеустрою щодо відведення земельної ділянки для обслу- говув

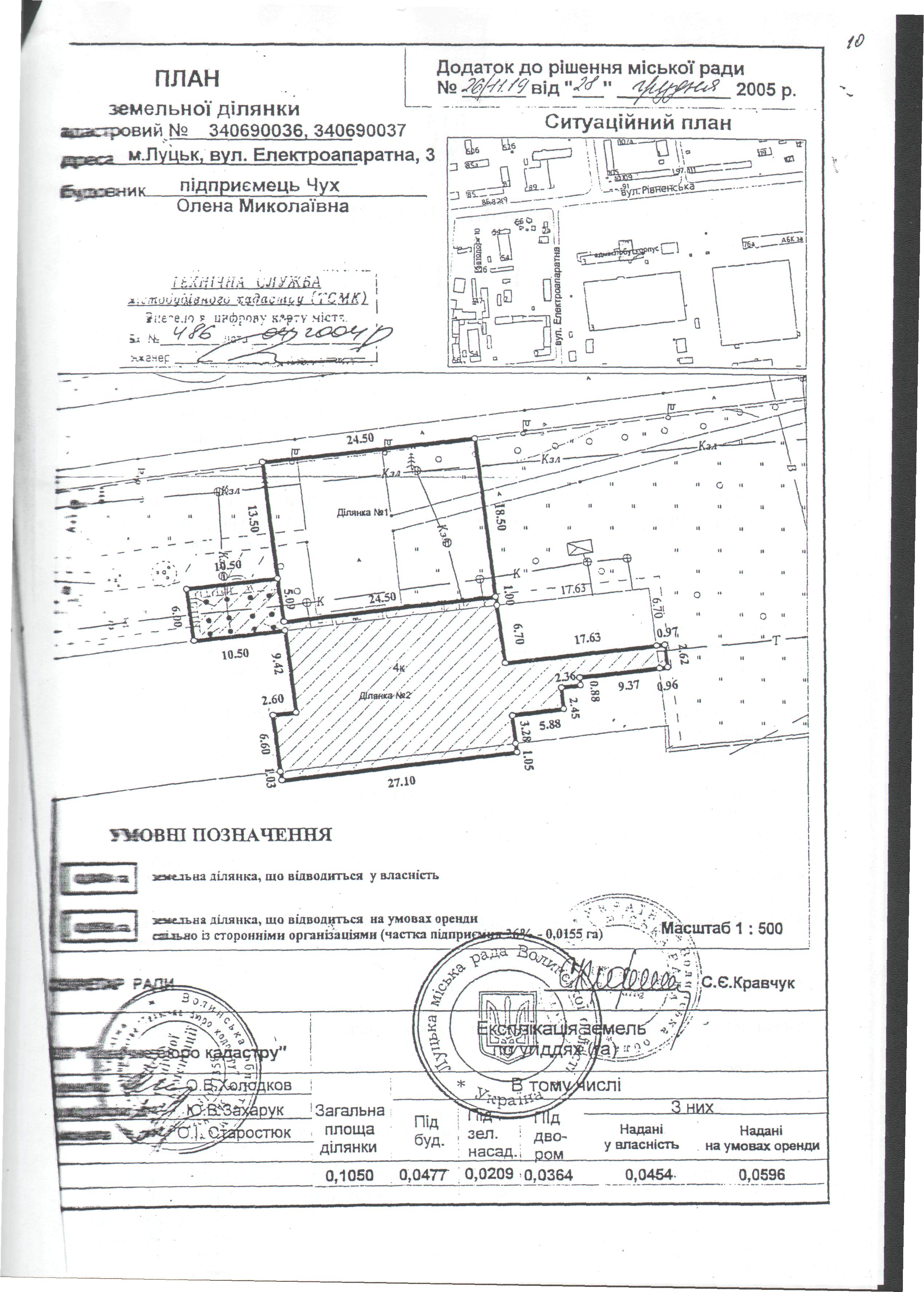
Розглянувши клопотання фізичної особи-підприємця Михальчук Олени Миколаївни про надання дозволу на розроблення проекту землеустрою щодо відведення земельної ділянки для обслуговування частини адміністративно-побутового корпусу під кафе на вул. Електроапаратній, 3, генплан земельної ділянки з прикладеним листом управління містобудування та архітектури Луцької міської ради щодо режиму забудови даної території, визначеної для містобудівних потреб, встановлених у генеральному плані міста Луцька, враховуючи інформацію з Державного реєстру речових прав на нерухоме майно, відповідно до якої фізична особа-підприємець Михальчук Олена Миколаївна не є одноосібною власницею майна, розташованого за адресою:  м. Луцьк, вул. Електроапаратна, 3, рішення Луцької міської ради від 28.12.2005    № 26/11.19 «Про продаж у власність та надання в оренду земельної ділянки підприємцю Чух О.М. для обслуговування адміністративного корпусу на вул. Електроапаратній, 3», свідоцтво про шлюб від 07.08.2009, серія 1-ЕГ № 047711, керуючись статтями 12, 120, 122-124 Земельного кодексу України, статтею 3 Закону України «Про оренду землі», Законом України «Про внесення змін до деяких законодавчих актів України щодо розмежування земель державної та комунальної власності», статтею 26 Закону України «Про місцеве самоврядування в Україні», міська рада

 

ВИРІШИЛА:

 

1. Відмовити фізичній особі-підприємцю Михальчук Олені Миколаївні в наданні дозволу на розроблення проекту землеустрою щодо відведення земельної ділянки на умовах оренди для обслуговування частини адміністративно-побутового корпусу під кафе на вул. Електроапаратній, 3, орієнтовною площею 0,05 га, з земель комунальної власності.

2. Зобов’язати фізичну особу-підприємця Михальчук Олену Миколаївну оформити право оренди на земельну ділянку спільно зі всіма співвласниками об’єкту нерухомого майна за адресою: м. Луцьк, вул. Електроапаратна, 3.

3. Внести зміни в рішення Луцької міської ради від 28.12.2005 № 26/11.19 «Про продаж у власність та надання в оренду земельної ділянки підприємцю Чух О.М. для обслуговування адміністративного корпусу на    вул. Електроапаратній, 3»:

3.1. Скасувати пункт 2 рішення.

3.2. Виключити з пункту 4, підпункту 5.3 пункту 5 слова «та оренди».

3.3. Виключити з підпункту 5.1 пункту 5 слова «та землекористувача».

4. Контроль за виконанням даного рішення покласти на постійну комісію міської ради з питань земельних відносин та земельного кадастру (Ткачук Є.Є.).

 

 

Секретар міської ради                                                 Юлія Вусенко