До головного контенту
  1. Головна
  2. Документи
  3. Рішення міської ради
Чинний
Рішення міської ради від 30.05.2012 №25/22 м. Луцьк

Про внесення змін до рішення міської ради від 21.12.2011 № 17/34 «Про внесення змін до рішення міської ради від 28.05.2008 № 27/82 «Про надання дозволів на складання проектів відведень земельних ділянок»

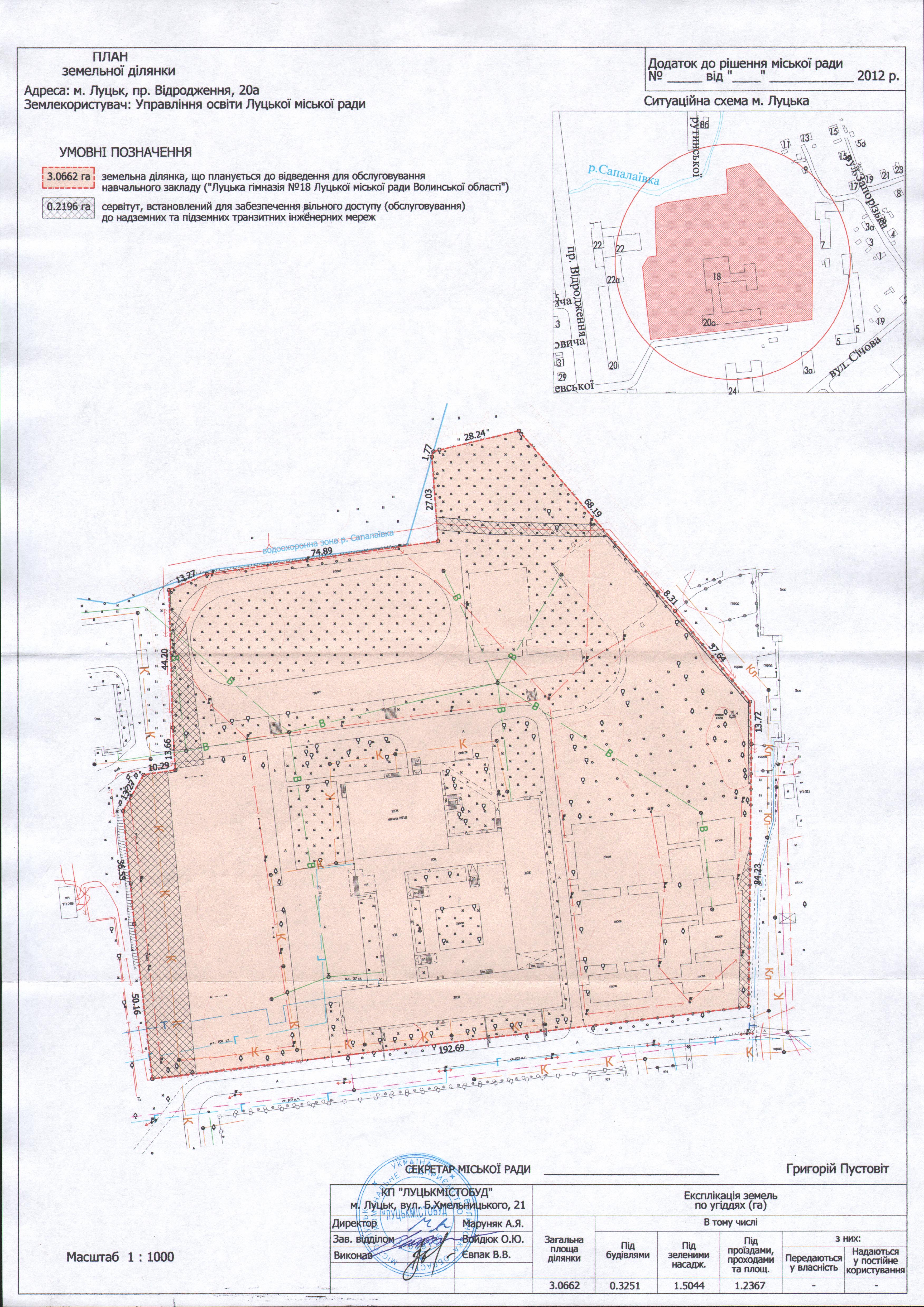
Розглянувши клопотання управління освіти Луцької міської ради про внесення змін до рішення міської ради від 21.12.2011 № 17/34 «Про внесення змін до рішення міської ради від 28.05.2008 № 27/82  «Про надання дозволів  на  складання проектів відведень земельних ділянок», у зв’язку з уточненням площі земельної ділянки на проспекті Відродження, 20а, на яку було надано дозвіл на складання проекту землеустрою щодо відведення земельної ділянки для обслуговування навчального закладу територіальної громади міста Луцька, керуючись ст.ст. 12, 92, 120, 123 Земельного кодексу України, ст. 26 Закону України «Про місцеве самоврядування в Україні», міська рада

В И Р І Ш И Л А:

1. Внести   зміни   в  частину другу  рішення Луцької міської  ради  від  21.12.2011  № 17/34 «Про внесення змін до рішення міської ради від 28.05.2008 № 27/82 «Про надання дозволів  на  складання  проектів відведень земельних ділянок», замінивши слова: «площею 3,0 га» на слова: «площею 3,0662 га», згідно з додатком.

2. Контроль  за  виконанням  даного рішення  покласти  на  постійну комісію міської ради з питань земельних відносин та земельного кадастру (Никитюк В.С.).

 

 

Міський голова                                                                                 Микола Романюк

 

Додатки: